1 2 3
Frame
深圳市名将装饰设计工程有限公司
电话:0755-3307-1956
传真:0755-3307-1956
电邮:1780368827@qq.com
手机:18123670085
您现在的位置:当前位置:首页 > 经典案例> 后现代
一品.雅居
点击次数:2194  发布时间:2019/5/9 11:53:21  【打印此页】  【关闭
一品.雅居







设计风格:后现代     设计地址:深圳市龙岗区融湖中心城7A06户型   设计户型:三房两厅两卫单阳台      109m2

业主简介:四十几岁成功男士,从事塑料制造加工行业,对外贸易,处理事情要求非常严格,但相处平易近人,常住三口之家,父母偶尔回住,常配三个卧室


设计需求:业主明确表示,不要欧式,过于奢华,现代风格偏于年轻化,中式风格爱人不喜欢,经沟通商议,推荐后现代。成熟、稳重,低调、深沉却略显实力。

整体配色:白色、灰色为主色调,咖啡、卡其色为搭配色、黑色为点缀色,整体配过渡协调自然。
设计感觉:成熟、稳重、大气、高雅
造型设计:造型以方圆为主,简洁、对称         设计费:100元/每平
软装配饰:按整体配色协调,家私以布艺为主,融入现代元素装饰。
主要材质:天然大理石、通体砖、硅藻泥、免漆板,布艺软包、水性漆等


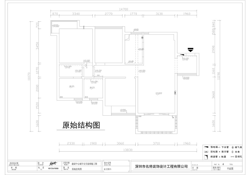
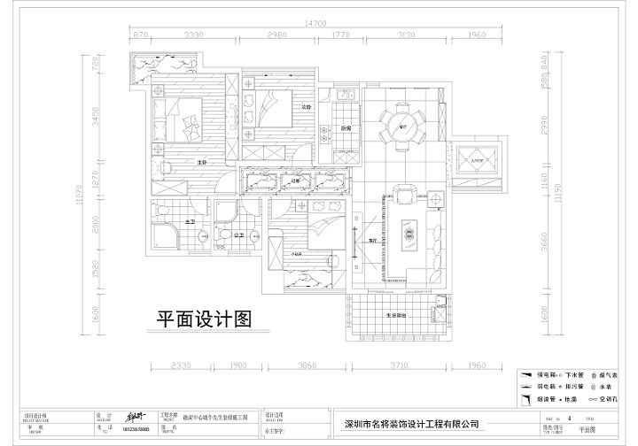
户型点评:位置靠近平湖广场,临近平吉大道,交通出行便利,成熟小区。原户型为三房两厅两卫单阳台,户型方正,光线充足,成高高挑,布局合理。原主卧带衣帽间,主卧进门视觉压抑,故拆掉为开放式,视觉效果更舒适大气。原主卧和次卧墙厚为240,设计厚墙变薄墙,增加空间使用率。原次卧门对卫生间,床头对厨房,小孩房床头对卫生间,经设计,卧室门均改位置。客餐厅位置,阳台,卫生间原位置尺寸设计合理,无需调整

深圳市名将装饰设计工程有限公司 2018 版权所有  粤ICP备19032362号
技术支持:出格