1 2 3
Frame
深圳市名将装饰设计工程有限公司
电话:0755-3307-1956
传真:0755-3307-1956
电邮:1780368827@qq.com
手机:18123670085
您现在的位置:当前位置:首页 > 经典案例> 中式风格
醉中式
点击次数:2323  发布时间:2019/4/3 16:46:04  【打印此页】  【关闭
醉中式


                    


           


             

                                                                                                                                                                                                                

                              

 


                               

 

                                   



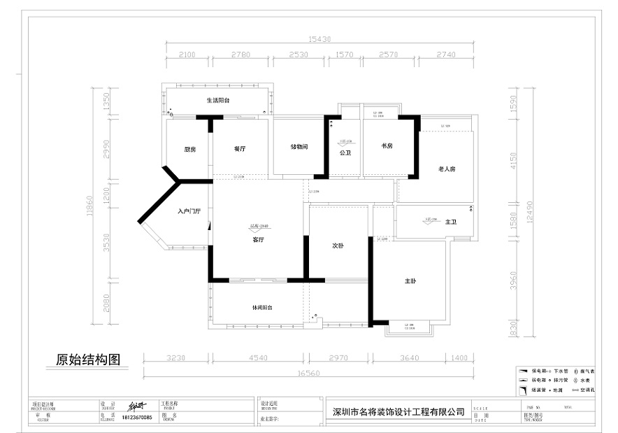
设计地址:深圳市龙华新区熙园山院5202户型       设计户型:五房两厅两卫双阳台 169m2

业主简介:四十几岁成功男士,从事制造行业,对于每件事情非常严谨,常住三口之家,父母偶尔回住,常配三个卧室。

设计需求:热爱中式,风格十分明确,无须雕龙画柱,不要太过于古典,太过于老气,须融入一些现代元素结合,偏向于新中式,整体效果简洁大气,成熟稳重而不失高雅。

整体配色:白色为主色调,搭配米黄、浅米黄,过渡中式的枣红色,融入中咖、深咖色,黑色为点缀色,整体配色过渡柔和舒适,自然。

设计感觉:成熟、稳重、自然、高雅 造型设计:造型以方圆为主,简洁、对称 设计费:150/每平

软装配饰:按整体配色协调,家私以简洁式木为主,布艺搭配,融入现代元素装饰

主要材质:天然大理石、通体砖、定制实木、免漆板,软包、水性漆等

户型点评:位置临近北站,交通出行便利,成熟小区。原户型为五房两厅两卫双阳台,户型方正,光线充足,成高高挑,布局合理。原餐厅宽度不足2800,尺寸偏小,后期体调整尺寸为3300,搭配酒柜,客餐厅更加整体大气。原主卫长度超过3800,原配浴缸,门对过道,经设计,主卫保留正常功能,位置增加更衣室,使用推拉门,主卫门隐藏更衣室内,主卧进门过道墙面更加舒适美观。原户型为双阳台,通风采光绝佳,本意设计保留,一个休闲阳台,喝茶聊天吹吹晚风,实属最佳。后期与业主多次商议,业主有意占用一半位置分给次卧,做个书房,便于小孩学习.

深圳市名将装饰设计工程有限公司 2018 版权所有  粤ICP备19032362号
技术支持:出格